Coastal Setback Requirements: OC ADU Entitlement Guide

OC Coastal ADU Setbacks: Entitlement & 2024 Permit Guide

Navigate California Coastal Commission jurisdiction, setback rules, and local ordinances for beach-city ADU development

Adding an accessory dwelling unit to a coastal Orange County property represents one of the highest-value plays in California real estate—but only if you successfully navigate the entitlement maze. While state ADU laws have streamlined development across most of California, coastal properties face an additional layer of regulation that catches many developers off guard: the California Coastal Commission's jurisdiction over setbacks, design standards, and development within the coastal zone.

For SFR owners in Newport Beach, Laguna Beach, Dana Point, and other Orange County beach cities, understanding coastal setback requirements isn't optional—it's the difference between a ministerial approval and a months-long discretionary review that can derail your project economics entirely.

Understanding Coastal Zone Jurisdiction in Orange County

Aerial view of Orange County coastline showing coastal zone boundaries
Coastal zone jurisdiction extends inland varying distances across Orange County beach cities

The California Coastal Act of 1976 established the California Coastal Commission (CCC) and created a regulatory framework that supersedes many local zoning provisions. In Orange County, the coastal zone extends inland varying distances—from approximately 1,000 feet in some areas to several miles in others—encompassing significant portions of prime real estate in cities like Huntington Beach, Seal Beach, and San Clemente.

Here's what most developers miss: even if your city has a certified Local Coastal Program (LCP), certain development types still require CCC review. ADUs often fall into this category, particularly when they involve:

  • New structures within 50 feet of coastal bluff edges
  • Development in areas with public access implications
  • Projects requiring variances from LCP standards
  • Properties between the first public road and the sea
  • Structures visible from public viewing areas or beaches

Newport Beach, Laguna Beach, and Dana Point all have certified LCPs, which means most ADU applications are reviewed at the local level—but with standards that reflect CCC policies. Huntington Beach and Seal Beach have partial LCP certification, creating a more complex jurisdictional landscape where some parcels require direct CCC involvement.

The Dual-Jurisdiction Reality

Your ADU project will navigate two parallel regulatory frameworks: state ADU law (primarily Government Code Sections 65852.2 and 65852.22) and coastal development regulations. When these frameworks conflict, coastal regulations generally prevail within the coastal zone—but recent legislation has created important carve-outs that favor ADU development.

AB 2221 (2020) and SB 897 (2020) specifically addressed this tension by limiting local agencies' ability to deny ADUs based on parking requirements and lot coverage standards, even in coastal zones. However, these laws explicitly preserve CCC authority over issues like coastal access, visual resources, and environmentally sensitive habitat areas.

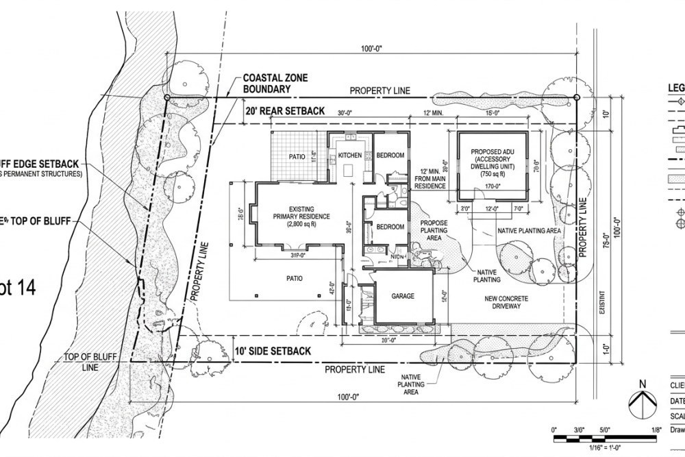
Coastal Setback Requirements Explained

Coastal property site plan showing ADU setback measurements and zones
Typical coastal setback requirements showing bluff-edge, side-yard, and oceanfront setback zones for ADU placement.

Setback requirements in coastal Orange County serve multiple purposes: protecting coastal bluffs from destabilization, preserving public views, maintaining coastal character, and ensuring future adaptation to sea-level rise. Unlike standard zoning setbacks that primarily address privacy and fire safety, coastal setbacks incorporate geologic hazard assessment and long-term coastal processes.

Standard Setback Framework

Most Orange County coastal cities apply a tiered setback approach for ADUs:

Bluff-Top Properties: Structures typically require setbacks of 25-40 feet from bluff edges, with the exact distance determined by geotechnical analysis. Some jurisdictions require setbacks sufficient to ensure 75-100 years of stability without shoreline protection. For ADUs, this often means matching or exceeding the primary residence setback rather than receiving the reduced setbacks available for inland properties.

Non-Bluff Coastal Properties: Standard side and rear setbacks range from 3-5 feet for ADUs under 16 feet in height, consistent with state ADU law. However, front setbacks facing the ocean or public beaches often require 10-20 feet to preserve the coastal streetscape and public view corridors.

Oceanfront Properties: The most restrictive category. Many jurisdictions prohibit new structures seaward of the primary residence or require minimum 20-foot setbacks from the property line closest to mean high tide. JADUs (Junior ADUs) within the existing footprint become particularly attractive here, as they avoid triggering new structure setback requirements entirely.

"The most successful coastal ADU projects I've seen start with a geotechnical assessment before architectural plans. Understanding your site's stability and required setbacks from day one prevents expensive redesigns when the coastal planner inevitably requests that analysis."

City-Specific Setback Variations

All-In Development Cost
Coastal JADU Conversion vs. New Detached ADU — All-In Cost Range

JADU conversions run roughly one-third the cost of a new detached coastal ADU, making them the default option on constrained bluff-top or oceanfront lots.

Coastal JADU Conversion vs. New Detached ADU — All-In Cost Range
ADU typeLow estimateHigh estimate
JADU (interior conversion)$75,000$150,000
New detached ADU$250,000$400,000

Newport Beach: The city's LCP requires ADUs to maintain the same bluff-edge setback as the primary dwelling, typically 25 feet minimum. For non-bluff properties, detached ADUs follow standard 4-foot side/rear setbacks but must be located behind the primary structure's front facade. Attached ADUs and JADUs receive more flexibility, particularly for conversions of existing accessory structures like garages.

Laguna Beach: Among the more restrictive coastal jurisdictions. Hillside properties (which include most of Laguna) face additional design review requirements. ADUs must be subordinate in size and scale to the primary residence, and setbacks often increase on slopes exceeding 25%. The city has shown preference for JADUs and attached ADUs over new detached structures in the coastal zone.

Dana Point: Applies a "coastal bluff overlay" that requires geotechnical certification for any new structure within 50 feet of a bluff edge. ADUs in this zone need engineered foundation systems and often require deeper setbacks than the standard 25 feet. However, Dana Point offers streamlined approval for ADUs outside the overlay zone, with 4-foot setbacks and ministerial processing.

Huntington Beach: With partial LCP certification, the city has a split regulatory approach. Properties in certified areas follow local ADU ordinances with standard setbacks; properties in uncertified areas require coastal development permits directly from the CCC for most ADUs. This creates significant timeline and cost differences depending on your parcel's specific location.

ADU vs. JADU: Entitlement Strategies for Coastal Properties

The distinction between ADUs and JADUs becomes critically important in coastal zones, where avoiding new structure triggers can mean the difference between a 6-month approval and a 2-year entitlement battle.

JADU Advantages in the Coastal Zone

Junior ADUs—limited to 500 square feet and created within the existing primary residence or attached garage—offer significant advantages for coastal properties:

  • No new setback analysis required: Since JADUs use existing building footprints, they don't trigger coastal setback reviews or geotechnical studies
  • Ministerial approval pathway: Most coastal cities must approve compliant JADUs ministerially, without discretionary design review
  • Lower CCC scrutiny: Interior conversions rarely implicate coastal access, visual resources, or bluff stability
  • Faster timelines: 60-90 day approval vs. 6-12 months for detached coastal ADUs
  • Cost efficiency: Conversion costs typically range from $75,000-$150,000 vs. $250,000-$400,000+ for new detached construction

For oceanfront properties or bluff-top lots where new structure setbacks would consume most buildable area, JADUs often represent the only economically viable accessory unit option. The 500-square-foot limitation is less constraining in high-value coastal markets where even small units command premium rents.

Detached ADU Considerations

When site conditions allow, detached ADUs offer advantages that may justify the more complex entitlement process:

  • Up to 1,200 square feet (or larger with local ordinance allowances)
  • Separate utility metering and true rental independence
  • Potential for two-story design maximizing ocean views
  • Higher rental income potential in coastal markets
  • Greater flexibility for future sale as separate legal unit

The key is conducting early due diligence on setback feasibility. Order a preliminary title report to identify all recorded setback easements, then overlay your city's coastal setback requirements and any CCC jurisdiction triggers. Many developers discover that their "buildable area" shrinks dramatically once all coastal setbacks are applied.

Recent state legislation has created important protections for ADU developers, even in coastal zones—but understanding the limitations is crucial.

Parking Requirement Relief

AB 2221 prohibits local agencies from requiring more than one parking space per ADU, and eliminates parking requirements entirely for ADUs within one-half mile of public transit. This applies in coastal zones, overriding LCP provisions that previously required two spaces for larger ADUs.

However, the CCC retains authority to require parking where it's necessary to protect coastal access. In practice, this means:

  • ADUs near beach access points may still face parking requirements to prevent spillover into public beach parking
  • Properties in areas with documented parking constraints may need to demonstrate adequate on-site parking
  • Tandem parking and creative solutions (like car stackers) are generally acceptable

Lot Coverage and Setback Protections

SB 897 limits local agencies' ability to apply lot coverage, floor area ratio, and open space requirements that would preclude construction of an 800-square-foot ADU with 4-foot side and rear setbacks. This creates a "floor" of development rights that applies even in coastal zones.

The practical effect: cities cannot use lot coverage limits to deny ADUs that meet state minimum standards—but they can still apply coastal-specific setbacks for bluff protection, visual resource preservation, and hazard avoidance. The law protects your right to build an ADU; it doesn't guarantee you can build it in your preferred location on the lot.

The Coastal ADU Entitlement Process: Timeline and Milestones

Planning department meeting reviewing coastal ADU architectural plans and documents
Coastal ADU entitlement requires coordination between local planners and coastal commission staff
Entitlement Timeline
Coastal ADU Entitlement — Duration by Phase (Weeks)

Entitlement review dominates the coastal ADU timeline; construction runs in parallel after permits issue.

Coastal ADU Entitlement — Duration by Phase (Weeks)
PhaseWeeks
Phase 1 · Pre-Application Due Diligence4.00
Phase 2 · Design & Engineering12.00
Phase 3 · Entitlement Review24.00
Phase 4 · Construction24.00

Understanding the approval pathway helps you plan realistic project timelines and budgets.

Phase One: Pre-Application Due Diligence (Weeks 1-4)

Before spending money on architectural plans, invest in understanding your site's constraints:

  • Order preliminary title report and survey to identify all easements and recorded setbacks
  • Request pre-application meeting with city planning and building departments
  • Determine whether your property is in the coastal zone and which agency has jurisdiction
  • Obtain geotechnical screening (for bluff-top or hillside properties)
  • Review neighborhood context and recent ADU approvals

This phase typically costs $2,000-$5,000 but can save tens of thousands by identifying fatal flaws before design investment.

Phase Two: Design and Engineering (Weeks 5-16)

Work with architects and engineers familiar with coastal requirements:

  • Architectural plans showing compliance with setbacks, height limits, and design standards
  • Geotechnical report (if required) analyzing bluff stability and foundation requirements
  • Drainage and utility plans demonstrating no increase in runoff or coastal hazards
  • Visual impact analysis (for properties with ocean views or public visibility)
  • Landscape plans showing drought-tolerant, coastal-appropriate vegetation

Coastal-experienced design professionals typically cost 15–25% more than standard residential architects, but their familiarity with CCC and LCP requirements can reduce revision cycles.

Phase Three: Entitlement Review (Weeks 17-40)

Timeline varies significantly based on project complexity and jurisdiction:

Ministerial JADUs: 60-90 days for building permit approval. No discretionary review or public hearing required.

Ministerial Detached ADUs (outside sensitive areas): 90-120 days. Building department review with planning sign-off on zoning compliance.

Coastal Development Permit (CDP) Required: 6-12 months. Includes public notice, potential appeals, and CCC review if in their jurisdiction. Budget for this pathway if your ADU involves:

  • New structures within bluff setback areas requiring variances
  • Properties between first public road and sea
  • Projects visible from public beaches or coastal access points
  • Sites with environmentally sensitive habitat areas

Phase Four: Construction (Months 10-16)

Coastal construction faces unique challenges:

  • Limited construction access in dense beach neighborhoods
  • Seasonal restrictions during bird nesting periods (typically March-August)
  • Higher material and labor costs due to coastal location
  • Salt-air corrosion requiring upgraded materials and finishes
  • Strict erosion control and runoff management during construction

Budget 20–30% more for coastal construction compared to inland projects, and add 2-3 months to standard timelines for weather delays and access constraints.

Common Entitlement Pitfalls and How to Avoid Them

Bluff-top property illustrating ADU setback constraints from coastal edge
Bluff-top ADU development requires geotechnical analysis to determine safe setback distances from unstable edges.

Pitfall #1: Assuming State ADU Law Supremacy

Many developers assume that because state law requires ministerial ADU approval, coastal regulations don't apply. This leads to plan submissions that ignore bluff setbacks or visual impact requirements, resulting in denials or expensive redesigns.

Solution: Treat coastal requirements as the baseline, with state ADU law providing additional protections against overly restrictive local standards. Your project must satisfy both frameworks.

Pitfall #2: Inadequate Geotechnical Analysis

Submitting plans without geotechnical reports for bluff-top properties, or using outdated reports from the primary residence construction, triggers automatic requests for additional information and delays approval by months.

Solution: Commission a new geotechnical study specifically addressing ADU foundation requirements and bluff stability. Ensure the geotechnical engineer is licensed in California and familiar with CCC standards. Budget $3,500-$8,000 for comprehensive analysis.

Pitfall #3: Ignoring Public Access Implications

ADUs that block traditional public access paths (even informal ones) or eliminate parking that serves beach access face CCC scrutiny and potential denial.

Solution: Document existing access patterns and demonstrate that your ADU maintains or improves public access. If your property has historically provided informal beach access, consider incorporating a formal access easement into your project to gain CCC support.

Pitfall #4: Underestimating Visual Impact Review

Two-story ADUs or structures that break the roofline of surrounding development often trigger discretionary design review, even when they meet height limits and setbacks.

Solution: Prepare visual simulations from public viewing areas showing your ADU in context. Design to match or be subordinate to the primary residence in height, bulk, and architectural style. Single-story designs with low-profile rooflines receive faster approval in most coastal jurisdictions.

Maximizing Value: Coastal ADU Investment Returns

Despite entitlement complexity, coastal ADUs can deliver strong returns in Orange County beach cities.

Rental Income Potential

Coastal Rent Comps
Monthly Coastal ADU Rents by Orange County City (2026)

Laguna Beach ocean-view units lead the OC coastal ADU market; Huntington Beach anchors the low end among Orange County beach cities.

Monthly Coastal ADU Rents by Orange County City (2026)
CityMonthly lowMonthly high
Newport Beach$2,800$4,500
Laguna Beach$3,200$5,000
Dana Point$2,500$3,800
Huntington Beach$2,400$3,600

A $300,000 ADU investment generating $3,500/month can produce substantial cash-on-cash returns before considering property value appreciation—potentially higher than many alternative real estate investments.

Property Value Enhancement

Coastal properties with legal ADUs may command premiums over comparable properties without accessory units. The combination of rental income and expanded living space appeals to multi-generational buyers and investors alike.

For properties in the $2-4 million range (typical for coastal Orange County SFRs), adding a well-designed ADU can potentially increase property value—well above the $250,000-$350,000 all-in development cost for most projects.

Portfolio Strategy Considerations

Coastal ADUs serve multiple investment strategies:

  • Cash Flow Enhancement: Long-term rentals to professionals and small families seeking coastal lifestyle without full-home costs
  • Flexible Use: Guest accommodations during owner occupancy, with rental income potential when primary residence is vacant
  • Multigenerational Living: Increasingly valuable as aging parents seek coastal proximity while maintaining independence
  • Future Subdivision Potential: While current law doesn't allow ADU condominiumization, legislative trends suggest this may change, creating potential future value optionality

Working with Coastal-Experienced Professionals

The specialized nature of coastal ADU development demands a team with specific expertise.

Architect Selection

Prioritize architects with demonstrated coastal project experience and existing relationships with local planning departments. Ask for references from recent ADU projects in your specific city, and review their success rate with ministerial vs. discretionary approvals.

Expect to pay $15,000-$35,000 for architectural services on a typical coastal ADU, with fees at the higher end for complex sites requiring extensive engineering coordination.

Expediter Value Proposition

Permit expediters who specialize in coastal jurisdictions can potentially reduce approval timelines through strategic application preparation and proactive coordination with planning staff. Their $5,000-$12,000 fees may be offset through reduced holding costs and faster income generation.

Property Management Considerations

Coastal ADUs attract premium tenants but require management expertise in luxury rental markets. Issues like salt-air maintenance, beach access expectations, and seasonal demand fluctuations differ substantially from inland rental management.

Specialized property management services for coastal ADUs address unique factors including maintenance scheduling for coastal-specific issues like HVAC salt-air corrosion and exterior finish degradation, while leveraging local market expertise for optimal tenant placement and retention.

The Future Regulatory Landscape

Several legislative and regulatory trends may shape coastal ADU development over the next 3-5 years.

Sea-Level Rise Adaptation Requirements

The CCC is increasingly incorporating sea-level rise projections into coastal development permits. Future ADU approvals may require demonstration that structures will remain safe and accessible through 2070-2100 under moderate sea-level rise scenarios.

This may mean elevated foundations, flood-resistant construction, or deed restrictions acknowledging future hazards. Early adoption of these standards can streamline approvals and protect long-term investment value.

ADU Law Evolution

Pending legislation would further limit local agencies' ability to restrict ADUs based on architectural compatibility and design standards—potentially affecting some LCP provisions. However, core coastal protections around bluff stability, public access, and environmentally sensitive areas are expected to remain intact.

Local Coastal Program Updates

Several Orange County coastal cities are updating their LCPs to better accommodate ADU development while maintaining coastal protections. Newport Beach and Dana Point have proposed amendments that would create clearer ministerial pathways for ADUs outside sensitive areas, potentially reducing approval timelines.

Conclusion: A Strategic Approach to Coastal ADU Development

Coastal Orange County ADU development requires navigating complex, overlapping regulatory frameworks—but the investment returns justify the additional effort. Properties that successfully add accessory units in beach cities can generate premium rental income, substantial value appreciation, and flexible use options unavailable in inland markets.

The key to success is treating coastal setback requirements and CCC jurisdiction as design parameters from day one, not obstacles to overcome after plans are complete. Invest in early due diligence, work with coastal-experienced professionals, and structure your project to align with both state ADU law protections and coastal resource preservation goals.

For SFR owners willing to navigate the entitlement process strategically, coastal ADUs represent one of the highest-value development opportunities in California real estate—combining the cash flow benefits of multifamily investment with the appreciation potential of prime coastal property.

Planning a Coastal ADU Investment? NextGen Coastal specializes in managing coastal ADUs and accessory structures across Orange County beach cities. Our proprietary technology platform and local expertise deliver white-glove service at just 5.9%—half the industry standard. From tenant placement to salt-air maintenance coordination, we handle the unique demands of coastal rental properties. Contact us to discuss how professional management maximizes your coastal ADU investment returns.
Share: X Facebook LinkedIn Instagram
Chris Kerstner
Chris Kerstner
CEO at NextGen Coastal

Chris founded NextGen Coastal in 2020 to bring white-glove property management to coastal California at a 5.9% fee — roughly half the industry standard. His team manages 200+ single-family homes, small apartment buildings, and HOAs within 100 miles of the California coast. He writes these dispatches from the field on what is actually working for owners navigating ADU and JADU permits, Coastal Commission reviews, vacancy cycles, and long-term rent strategy.