Understanding California Coastal Commission Jurisdiction in Ventura County
The California Coastal Commission exercises regulatory authority over development within the coastal zone—a band extending inland from the mean high tide line, typically 1,000 yards but varying based on topography and ecological significance. In Ventura County, this jurisdiction covers substantial portions of the cities of Ventura, Oxnard, and Port Hueneme, plus unincorporated coastal areas including Faria Beach, Solimar Beach, and portions of Ojai Valley near the coast.
For ADU developers, CCC jurisdiction creates a two-tier approval process. While AB 2221 mandates ministerial approval within 60 days for compliant ADU applications, properties in the coastal zone may require a Coastal Development Permit (CDP) in addition to local building permits. The critical distinction: ministerial approval means staff-level administrative review with no discretionary hearings, while CDP review can involve public comment, design modifications, and—most significantly—appeal rights to the Coastal Commission itself.
Not all coastal-zone ADUs trigger CDP requirements. SB 897 (2022) exempted ADUs from CDP requirements when they meet specific criteria: located on a lot with an existing single-family residence, do not exceed height limits, maintain required setbacks, and do not involve demolition of affordable housing. This exemption is transformative for straightforward projects but requires careful analysis of site-specific conditions.

When a Coastal Development Permit Is Required
Even under SB 897's exemptions, certain conditions trigger mandatory CDP review. Projects involving bluff-top properties within 50 feet of coastal bluffs, sites with environmentally sensitive habitat areas (ESHA), or locations in high-fire-hazard zones within the coastal zone typically require full CDP processing. Additionally, if your ADU design exceeds local height limits (often 16–18 feet for flat roofs, 25 feet for pitched roofs) or requires setback variances, the CDP exemption may not apply.
The appeal mechanism is where CCC jurisdiction becomes most consequential. Local CDP approvals can be appealed to the Coastal Commission within 10 working days by any interested party. If appealed and accepted for review, the Commission can modify or deny the project based on Coastal Act policies—even if it fully complies with local zoning. This introduces uncertainty that developers must account for in pro forma analysis and timeline planning.
AB 2221 and the Ministerial Approval Framework
Assembly Bill 2221, effective January 1, 2023, represented the most significant ADU reform since AB 68 (2019) first mandated ministerial processing. The law closed loopholes that allowed cities to impose subjective design review, neighborhood compatibility findings, and other discretionary hurdles. For Ventura County developers, AB 2221's key provisions include:
- Objective standards only: Cities can apply only objective, measurable development standards (setbacks, height, lot coverage) without subjective design review
- 60-day approval timeline: Complete applications must be approved or denied within 60 days, with denials requiring specific code citations
- No owner-occupancy requirements: Eliminated the ability to require owners to occupy either the primary residence or ADU
- Utility connection streamlining: Prohibited separate utility connection fees or capacity charges beyond actual infrastructure costs
- Impact fee limitations: Capped impact fees at proportional share based on ADU square footage, with full waivers for ADUs under 750 square feet
The practical effect in Ventura County has been dramatic. Prior to AB 2221, cities like Ventura and Oxnard maintained design review processes that added 90–120 days to entitlement timelines. Post-AB 2221, compliant applications in non-coastal-zone areas now receive approval in 45–60 days, with building permits issued concurrently or immediately following.
"AB 2221 eliminated the subjective gatekeeping that previously allowed cities to slow-walk or deny ADU applications based on neighborhood aesthetics or planning commissioner preferences. For coastal Ventura properties outside CDP jurisdiction, we're now seeing entitlement-to-construction timelines of 75–90 days versus 6–9 months pre-2023."
Interpreting Objective Standards in Coastal Contexts
The "objective standards" requirement creates interesting dynamics in coastal jurisdictions. While cities cannot impose subjective design preferences, they can enforce objective standards related to coastal resource protection—view corridors, public access, water quality, and habitat preservation. The question becomes whether a standard is truly objective (measurable, non-discretionary) or a disguised subjective requirement.
Ventura County cities have responded by codifying coastal-specific objective standards. Oxnard's ADU ordinance, for example, includes objective view-corridor protections requiring ADUs to maintain 45-degree sight lines from adjacent properties to the ocean when located within 300 feet of the coast. Ventura's ordinance establishes objective landscaping ratios (30% permeable surface minimum) tied to stormwater management rather than aesthetics. These standards survive AB 2221 scrutiny because they're measurable and tied to legitimate coastal resource protection.

City-by-City ADU Ordinances in Coastal Ventura County
Each Ventura County coastal city has adopted ADU ordinances that layer local requirements onto state law. Understanding these city-specific provisions is essential for site selection and feasibility analysis.
City of Ventura ADU Regulations
The City of Ventura adopted its current ADU ordinance in March 2023, incorporating AB 2221 requirements while maintaining coastal-specific provisions. Key parameters include:
- Size limits: Detached ADUs up to 1,200 square feet; attached ADUs up to 50% of primary residence square footage (max 1,200 SF)
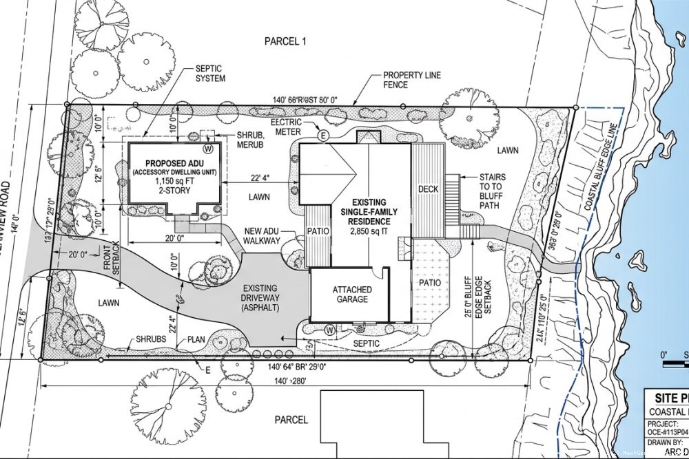
- Setbacks: 4-foot side/rear setbacks standard; coastal bluff properties require 25-foot bluff-edge setback plus geotechnical certification
- Height limits: 16 feet for flat roofs, 25 feet for pitched roofs (4:12 minimum pitch)
- Parking: No parking required for ADUs within 1/2 mile of transit or in historic districts; otherwise one space required
- JADUs: Permitted ministerially up to 500 square feet, must be within existing or proposed primary residence footprint
Ventura's ordinance includes a notable coastal-zone provision: ADUs on oceanfront lots require enhanced drainage plans demonstrating zero increase in runoff to adjacent properties or public beach access points. This objective standard adds engineering costs ($2,500–$4,500) but is defensible under AB 2221 as a measurable water-quality protection.
Oxnard ADU Framework
Oxnard, with the county's largest coastal-zone residential inventory, adopted comprehensive ADU regulations in August 2023. The ordinance is notably permissive in non-coastal areas while maintaining stricter coastal provisions:
- Size limits: Up to 1,200 square feet or 50% of primary residence, whichever is less
- Setbacks: Zero-lot-line permitted for ADUs along non-street side property lines; 10-foot coastal bluff setback (less than Ventura's 25 feet)
- Two-ADU allowance: Properties over 7,500 square feet can build both a detached ADU and JADU simultaneously
- Coastal view corridors: Objective 45-degree view-plane requirement from adjacent habitable structures within 300 feet of coast
- Fire-hazard zones: Properties in Very High Fire Hazard Severity Zones require Class A roofing and 5-foot ember-resistant zones (affects coastal hillside areas)
Oxnard's two-ADU allowance on larger lots creates significant value-add opportunities. A 9,000-square-foot coastal lot can accommodate a 900-square-foot detached ADU plus a 500-square-foot JADU, potentially generating $4,800–$5,600 combined monthly rent—a compelling return on a $280,000–$340,000 combined development cost.
Port Hueneme Coastal ADU Rules
Port Hueneme, the county's smallest coastal city, adopted ADU regulations in January 2024 that emphasize infill development and beach-access preservation:
- Size limits: 850 square feet maximum (more restrictive than state law's 1,200 SF allowance)
- Setbacks: 5-foot minimum all sides; no zero-lot-line provisions
- Beach-access protection: ADUs within 200 feet of public beach access points require pedestrian sight-line analysis
- Parking: Strictly enforced one-space requirement (no transit proximity exemption)
- Design standards: Objective material palette requirements (fiber-cement, stucco, or wood siding; no vinyl) tied to coastal salt-air durability
Port Hueneme's 850-square-foot cap is legally defensible under state law because the city can demonstrate that average lot sizes (4,800–5,500 SF) make 1,200 SF ADUs incompatible with objective lot-coverage and open-space requirements. This illustrates how cities can work within AB 2221's framework while maintaining local character.

JADU Conversions: The Fastest Coastal Entitlement Path
Junior Accessory Dwelling Units—internal conversions of existing space within the primary residence—represent the most streamlined entitlement option for coastal property owners. JADUs require no setback compliance, no lot-coverage analysis, and no separate utility connections, eliminating the primary friction points in coastal permitting.
State law defines JADUs as units up to 500 square feet contained entirely within a single-family residence or attached garage, with an efficiency kitchen (sink, cooking appliance, counter space) but sharing at least one fixture (typically bathroom) with the primary residence. The shared-fixture requirement distinguishes JADUs from full ADUs and is the basis for their expedited approval.
Why JADUs Excel in Coastal Zones
In coastal Ventura County, JADU conversions bypass several regulatory hurdles that complicate detached ADU development:
- No CDP trigger: Because JADUs involve no external construction or footprint expansion, they typically don't require Coastal Development Permits even in sensitive coastal areas
- Bluff setback immunity: Internal conversions aren't subject to bluff-edge setback requirements that often push detached ADUs into less-optimal lot locations
- View-corridor preservation: No new structure means no impact on neighbor view corridors, eliminating a common coastal objection
- Faster timelines: JADU applications in Ventura County cities average 35–45 days to approval versus 60–75 days for detached ADUs
- Lower costs: Conversion costs of $65,000–$95,000 (versus $180,000–$240,000 for new construction) deliver faster payback periods
The rental economics are compelling despite the size limitation. A 450-square-foot JADU in coastal Ventura commands $1,800–$2,200 monthly rent—roughly $4.00–$4.90 per square foot, comparable to or exceeding detached ADU rent-per-square-foot metrics. With conversion costs averaging $180–$210 per square foot, the cash-on-cash return often exceeds 9–11%.
Identifying Optimal JADU Conversion Candidates
Not all coastal properties are JADU-suitable. The best candidates share specific characteristics:
- Existing bonus rooms: Homes with oversized master suites, finished attic spaces, or large home offices that can be demised with minimal structural work
- Attached garages: Two-car garages where one bay can be converted while maintaining required parking for the primary residence
- Separate entry potential: Locations where a dedicated exterior door can be added without compromising the primary residence's curb appeal or security
- Plumbing proximity: Spaces within 15–20 feet of existing plumbing stacks, minimizing the cost of kitchen and bathroom rough-in
Ventura County's coastal housing stock—dominated by 1960s–1980s ranch-style homes with attached garages—is particularly well-suited to JADU conversion. These homes typically feature 400–500 square foot garages with 8-foot ceilings, direct access to the main house, and proximity to existing plumbing, making them ideal conversion targets.
Navigating Coastal Setback Requirements and Variances
Setback requirements in coastal zones layer multiple regulatory frameworks: local zoning setbacks, coastal bluff setbacks, and environmentally sensitive habitat area (ESHA) buffers. Understanding how these interact is critical to feasible ADU siting.
Standard Zoning Setbacks vs. Coastal Bluff Setbacks
Standard residential setbacks in Ventura County coastal cities typically require 5-foot side yards and 10–15 foot rear yards. AB 2221 allows ADUs to use 4-foot side/rear setbacks regardless of local zoning, a significant advantage on constrained coastal lots. However, coastal bluff setbacks—measured from the bluff edge or top of slope—supersede these standard setbacks.
Ventura County's coastal bluff setback requirements vary by jurisdiction and bluff stability:
- City of Ventura: 25-foot minimum setback from bluff edge, plus additional setback equal to 2x the bluff height for unstable bluffs (determined by geotechnical analysis)
- Oxnard: 10-foot minimum setback, with site-specific geotechnical reports required for bluffs over 15 feet in height
- Unincorporated areas: County requires 25-foot setback plus erosion-rate setback (50 years of projected erosion at documented historical rates)
These setbacks can consume significant portions of coastal lots. A 6,000-square-foot oceanfront lot with a 40-foot bluff might face an 80-foot setback (25-foot base + 55-foot height-based setback), leaving minimal buildable area for an ADU behind the existing residence.

Setback Variance Strategy in Coastal Zones
When standard setbacks make ADU development infeasible, property owners can pursue variances—but the process differs significantly in coastal zones. Traditional zoning variances require demonstrating hardship (unique property conditions not shared by neighboring parcels) and are discretionary, potentially conflicting with AB 2221's ministerial mandate.
The solution: objective variance criteria tied to coastal resource protection. Ventura County cities have adopted administrative variance procedures for ADUs that meet specific objective findings:
- The variance is the minimum necessary to allow reasonable ADU development
- The ADU location with variance results in less coastal resource impact than a compliant location
- The variance does not create new public access impediments
- Geotechnical analysis confirms structural safety
These objective findings allow staff-level variance approval without discretionary hearings, preserving AB 2221's ministerial framework. For example, an ADU that requires a 3-foot side setback reduction (from 4 feet to 1 foot) to avoid encroaching into a coastal bluff setback can receive administrative approval if it demonstrably reduces coastal impact.
Entitlement Timeline and Strategic Sequencing
Coastal Development Permit requirements double entitlement timelines, adding 6-9 months if appealed to the Coastal Commission.
| Label | Days to Building Permit |
|---|---|
| Non-CDP (SB 897 Exempt) | 82.00 |
| CDP Required (No Appeal) | 165.00 |
| CDP with CCC Appeal | 345.00 |
Successful coastal ADU development requires strategic sequencing of entitlement steps to minimize delays and avoid costly rework. The optimal timeline varies based on CDP requirements and city-specific processes.
Non-CDP Coastal Zone Timeline (SB 897 Exempt)
For ADUs that qualify for SB 897's CDP exemption, the entitlement timeline in Ventura County coastal cities follows this sequence:
- Days 1–14: Pre-application consultation with city planning staff to confirm CDP exemption, verify setback compliance, and identify any objective standard issues
- Days 15–21: Prepare and submit complete ADU application including site plan, elevations, drainage plan, and utility connection details
- Days 22–45: City completeness review and any requests for additional information (AB 2221 requires cities to identify deficiencies within 30 days)
- Days 46–60: Final staff review and approval (AB 2221 mandates approval or denial by day 60)
- Days 61–75: Building permit plan check and issuance (often concurrent with ADU approval in streamlined jurisdictions)
Total timeline: 75–90 days from initial consultation to building permit issuance. This assumes a complete, compliant application with no setback variances or design modifications required.
CDP-Required Timeline
When a Coastal Development Permit is required, the timeline extends significantly:
- Days 1–30: Pre-application meeting and preparation of CDP application materials including coastal resource impact analysis
- Days 31–45: Submit combined CDP and ADU application
- Days 46–90: City staff review, potential site visit, and preparation of staff report
- Days 91–105: Public notice period (10 working days minimum) and opportunity for public comment
- Days 106–120: Staff-level CDP approval (for non-appealable CDPs) or Planning Commission hearing (for appealable CDPs)
- Days 121–135: Appeal period (10 working days) during which any party can appeal to Coastal Commission
- Days 136–150: If no appeal, building permit processing begins
Total timeline without appeal: 150–180 days. If appealed to the Coastal Commission, add 6–12 months for Commission hearing scheduling, staff report preparation, and final decision.
Timeline Optimization Strategies
Experienced coastal developers employ several strategies to compress entitlement timelines:
- Pre-application investment: Spending $3,500–$6,000 on professional site planning and coastal resource analysis before application submission reduces back-and-forth with city staff
- Concurrent processing: Requesting concurrent ADU and building permit review (allowed under AB 2221) can save 30–45 days
- Geotechnical pre-approval: Obtaining geotechnical reports before application submission eliminates a common delay point for coastal bluff properties
- Utility pre-coordination: Coordinating with water and sewer districts before application to confirm capacity and connection requirements
The investment in upfront professional services—typically $8,000–$12,000 for comprehensive pre-application work—routinely saves 60–90 days in entitlement timeline, translating to $15,000–$25,000 in avoided carrying costs and earlier rent commencement.
Development Costs and Return Analysis for Coastal Ventura ADUs
JADU conversions cost 60% less than detached ADUs while delivering superior cash-on-cash returns in coastal markets.
| Label | All-In Development Cost |
|---|---|
| Detached ADU (800 SF) | $240,000 |
| JADU Conversion (450 SF) | $96,000 |
Coastal construction costs in Ventura County exceed inland markets by 15–25% due to salt-air corrosion protection, enhanced drainage requirements, and premium finishes that command coastal rents. Understanding the full cost structure is essential for accurate pro forma modeling.
Detached ADU Construction Costs
A turnkey 800-square-foot detached ADU in coastal Ventura County typically costs:
- Hard costs: $220–$280 per square foot ($176,000–$224,000 for 800 SF) including foundation, framing, exterior finishes, interior finishes, and all systems
- Soft costs: $28,000–$38,000 including architectural/engineering ($8,000–$12,000), permits and fees ($6,000–$9,000), utility connections ($8,000–$11,000), and contingency (5–8%)
- Site work: $12,000–$18,000 for grading, drainage, landscaping, and hardscaping
Total all-in cost: $216,000–$280,000 for an 800-square-foot detached ADU, or $270–$350 per square foot. Coastal-specific cost drivers include stainless steel fasteners and flashing ($3,500–$5,000 premium), enhanced stucco systems with moisture barriers ($4,000–$6,000 premium), and salt-resistant HVAC equipment ($2,000–$3,000 premium).
JADU Conversion Economics
Converting a 450-square-foot garage bay to a JADU costs substantially less:
- Hard costs: $160–$210 per square foot ($72,000–$94,500 for 450 SF) including demising wall, insulation, drywall, flooring, efficiency kitchen, bathroom modifications, and electrical/plumbing
- Soft costs: $8,000–$12,000 including design, permits, and contingency
- Minimal site work: $2,000–$4,000 for exterior door installation and minor grading
Total all-in cost: $82,000–$110,500 for a 450-square-foot JADU conversion, or $182–$246 per square foot—roughly 35–40% less than new detached construction on a per-square-foot basis.
Return Metrics and Value Creation
The financial returns on coastal Ventura ADUs are compelling when properly underwritten:
Detached ADU (800 SF):
- Market rent: $2,800–$3,400/month ($33,600–$40,800 annually)
- All-in development cost: $240,000 (midpoint)
- Cash-on-cash return: 14.0–17.0% (assuming 30% down, 7.5% financing on balance)
- Property value increase: $200,000–$260,000 (using 5.5–6.5% cap rate)
- Net equity creation: $0–$20,000 after development costs (break-even to modest immediate equity)
JADU Conversion (450 SF):
- Market rent: $1,900–$2,200/month ($22,800–$26,400 annually)
- All-in development cost: $96,000 (midpoint)
- Cash-on-cash return: 23.8–27.5% (assuming 30% down, 7.5% financing on balance)
- Property value increase: $120,000–$150,000
- Net equity creation: $24,000–$54,000 immediate equity gain
These returns assume 95% occupancy, 8% operating expense ratio (utilities typically paid by tenant in ADUs), and exclude property management fees. The JADU's superior cash-on-cash return reflects lower development costs and faster lease-up (typically 15–30 days in coastal markets with severe housing shortages).
Common Entitlement Pitfalls and How to Avoid Them
Coastal ADU development presents unique challenges that can derail projects or inflate costs. Understanding common pitfalls allows developers to structure deals defensively.
Pitfall 1: CDP Requirement Misclassification
The most costly mistake is assuming SB 897's CDP exemption applies when site-specific conditions trigger CDP requirements. Properties near coastal bluffs, within ESHA buffers, or in mapped hazard zones often require CDPs despite meeting standard ADU criteria. Failure to identify CDP requirements upfront can add 6–9 months to timelines and $15,000–$25,000 in additional consultant costs.
Solution: Invest in professional pre-application analysis. A qualified land-use consultant or coastal engineer can definitively determine CDP requirements for $2,500–$4,000—a fraction of the cost of discovering the requirement mid-process.
Pitfall 2: Inadequate Geotechnical Analysis
Coastal bluff properties require geotechnical reports analyzing slope stability, erosion rates, and foundation requirements. Generic geotechnical reports that don't address coastal-specific conditions are routinely rejected by city staff, requiring expensive supplemental analysis.
Solution: Engage geotechnical engineers with California Engineering Geologist (CEG) certification and coastal bluff experience. Specify that reports must address Coastal Commission bluff stability criteria and include 50-year erosion projections. Budget $4,500–$7,500 for comprehensive coastal geotechnical analysis versus $2,500–$3,500 for standard reports.
Pitfall 3: Utility Capacity Assumptions
Coastal Ventura County's water and sewer systems face capacity constraints in certain areas. Assuming adequate utility capacity without pre-application verification can lead to project delays or requirements for costly off-site improvements.
Solution: Request will-serve letters from water and sewer districts during pre-application phase. Ventura Water and Camrosa Water District typically respond within 15–20 business days. If capacity issues exist, factor $8,000–$15,000 for connection fee increases or minor off-site improvements into pro forma.
Pitfall 4: Underestimating Appeal Risk
Even properly entitled coastal ADUs face appeal risk from neighbors concerned about views, privacy, or neighborhood character. While AB 2221 limits grounds for appeal to objective standard violations, appeals to the Coastal Commission can be filed on broader Coastal Act grounds.
Solution: Proactive neighbor engagement before application submission can reduce appeal risk. Sharing preliminary plans, addressing view-corridor concerns through design modifications, and demonstrating coastal resource protection measures builds goodwill. Budget 20–30 hours of architect time ($3,000–$4,500) for neighbor-responsive design refinement.
The Evolving Regulatory Landscape: What's Next for Coastal ADUs
California's ADU regulatory framework continues to evolve, with several pending legislative proposals that could further streamline coastal development or introduce new requirements.
Pending Legislation and Policy Trends
Several bills in the current legislative session could impact coastal Ventura County ADU development:
- AB 1332 (2024): Proposes to eliminate parking requirements for all ADUs statewide, overriding local ordinances that maintain one-space requirements in non-transit areas
- SB 684 (2024): Would require Coastal Commission to adopt streamlined ADU review procedures, potentially reducing appeal timelines from 6–12 months to 90–120 days
- Coastal Commission ADU guidance: The Commission is developing updated guidance on SB 897 CDP exemptions, expected to clarify ambiguous situations like ADUs on through-lots with coastal access
Additionally, several Ventura County cities are considering local ordinance updates to further streamline ADU approval. Oxnard is evaluating pre-approved ADU design templates that would receive same-day plan check approval for standard 600 SF and 800 SF designs, potentially reducing timelines to 30–45 days.
Market Trajectory and Investment Outlook
Coastal Ventura County's ADU market is poised for continued growth driven by structural housing shortages and favorable economics. The county's 1.2% rental vacancy rate—among the lowest in California—supports strong ADU rents and rapid lease-up. With median single-family home prices of $820,000–$950,000 in coastal areas, ADU development offers more accessible entry points for investors than whole-property acquisition.
The regulatory trajectory favors continued streamlining. As cities gain experience with AB 2221 implementation and develop objective coastal standards, entitlement timelines should compress further. The emergence of pre-approved design templates, digital plan review, and concurrent processing will likely reduce non-CDP timelines to 45–60 days by 2025–2026.
For investors and property owners, the current environment presents a compelling opportunity: regulatory clarity is increasing while construction costs have stabilized after 2021–2023 inflation. Developers who move now can lock in favorable construction pricing while benefiting from streamlined entitlement, positioning coastal ADU projects for strong returns in a supply-constrained market.
Strategic Recommendations for Coastal Ventura ADU Development
Based on current regulatory frameworks and market conditions, several strategic principles emerge for successful coastal ADU development:
1. Prioritize JADU conversions for fastest returns. When existing space allows, JADU conversions deliver superior cash-on-cash returns (23–28% vs. 14–17% for new construction) and avoid most coastal permitting complexity. Focus on properties with attached garages or bonus rooms within 20 feet of existing plumbing.
2. Invest in comprehensive pre-application analysis. Spending $8,000–$12,000 on professional site analysis, geotechnical reports, and coastal resource evaluation before application submission routinely saves $20,000–$35,000 in avoided delays and rework. This is especially critical for bluff-top properties and sites near ESHA.
3. Design for objective standard compliance. Work with architects experienced in coastal ADU development who understand how to maximize square footage while maintaining objective setback, height, and lot-coverage compliance. Avoid designs that require variances unless absolutely necessary—each variance adds 30–45 days to timelines.
4. Sequence entitlement and construction strategically. Begin contractor selection and preliminary pricing during entitlement to enable immediate construction start upon permit issuance. The 60–90 day entitlement period is sufficient to complete contractor bidding, finalize specifications, and secure construction financing.
5. Underwrite conservatively for coastal costs. Use $270–$350 per square foot for detached ADU pro formas and $180–$210 per square foot for JADU conversions. Coastal-specific requirements (salt-air protection, enhanced drainage, geotechnical) add 15–25% to base construction costs—underwriting at inland pricing creates false feasibility.
6. Plan for 150–180 day timelines when CDP required. If your property requires a Coastal Development Permit, structure financing and carrying cost assumptions around 6-month entitlement timelines. Factor an additional 6–9 months of contingency for potential appeals, even if you believe appeal risk is low.
7. Leverage two-ADU opportunities on larger lots. Properties over 7,500 square feet in Oxnard can build both a detached ADU and JADU, potentially generating $4,800–$5,600 combined monthly rent. The incremental cost of adding a JADU to a detached ADU project is typically only $75,000–$95,000, delivering exceptional marginal returns.



