Understanding CCC Jurisdiction in Ventura County
The California Coastal Commission exercises regulatory authority over a defined coastal zone that extends inland from the Pacific Ocean across portions of Ventura County. Unlike Orange County's relatively narrow coastal zone or San Diego's patchwork jurisdiction, Ventura's CCC boundary encompasses significant residential neighborhoods in Ventura, Oxnard, Port Hueneme, and unincorporated coastal areas where single-family homeowners are actively pursuing ADU development.
The critical distinction for ADU developers: properties within the coastal zone require a Coastal Development Permit (CDP) for most accessory structures, even when the underlying ADU complies with state ministerial approval standards. This dual-track process—local ADU permit plus CDP—creates a more complex entitlement pathway than inland Ventura County properties experience.
Ventura County's Local Coastal Program (LCP), certified by the CCC in segments between 1980 and 2014, delegates certain permitting authority to local jurisdictions. The City of Ventura, for example, processes CDPs for many residential projects through its certified LCP, while unincorporated coastal areas often require direct CCC review. Developers must first determine whether their parcel falls within an area of deferred certification, where the CCC retains original jurisdiction, or within a certified LCP segment where the city or county acts as the lead agency.

Certified LCP Areas vs. Direct CCC Review
Within the City of Ventura's certified LCP area, residential ADU projects that meet specific criteria can be processed locally without CCC appeal risk. The city's Planning Division reviews ADU applications for consistency with both the municipal ADU ordinance (updated in 2023 to align with state law) and the coastal land use policies embedded in the LCP. Projects that conform to established setbacks, height limits, and design standards typically receive streamlined approval.
However, unincorporated coastal Ventura County properties often face direct CCC jurisdiction, particularly in areas like Faria Beach, Solimar Beach, and portions of the Rincon coast. Here, the County processes the local ADU permit, but the CCC must issue a separate CDP. This bifurcated process can extend timelines from the typical 60-day ministerial ADU approval to 120+ days when CCC staff review is required.
The CCC's 2024 guidance on ADUs in the coastal zone clarified that certain categories of accessory dwelling units may qualify for categorical exemptions or expedited CDP processing. Understanding which exemption category applies to your project is the first step in timeline management.
AB 2221 and SB 897: Coastal Zone Exemptions
California's recent ADU legislation has attempted to reduce permitting friction in the coastal zone, with mixed results. AB 2221 (2022) established that ADUs meeting specific criteria must be approved ministerially, even in coastal zones, without discretionary review. The law explicitly prohibits local agencies from requiring a CDP for ADUs that are:
- Located entirely within the existing footprint of a primary residence or existing accessory structure
- Constructed in the same location and to the same dimensions as an existing structure (replacement ADUs)
- Attached to the primary dwelling with no expansion of the building envelope toward the ocean
This exemption has proven particularly valuable for JADU (Junior Accessory Dwelling Unit) conversions within existing single-family homes in Ventura's coastal neighborhoods. A 400-square-foot JADU carved from an existing bedroom or bonus room, with its own entrance and kitchenette, typically qualifies for ministerial approval without triggering CDP requirements—even on oceanfront parcels.
SB 897 (2021) further refined the coastal exemption framework by prohibiting the CCC from requiring a CDP for ADUs located in existing single-family residential zones, provided the ADU does not exceed specific size thresholds (800 square feet for a detached ADU, 850 square feet for an attached ADU) and maintains required setbacks from the mean high tide line.
"The intersection of state ADU law and coastal permitting creates a narrow but valuable exemption corridor. Developers who design within the SB 897 envelope—800 square feet detached, landward setbacks compliant—can often bypass the CDP process entirely, collapsing a six-month entitlement into a 60-day ministerial approval."
However, these exemptions contain critical limitations. Any ADU that requires demolition of existing structures, expands the building envelope seaward, or sits on a bluff-top parcel with geologic hazards will likely trigger full CDP review regardless of size. The CCC retains broad authority to require permits for projects that may impact coastal resources, public access, or visual quality—even when state ADU law would otherwise mandate ministerial approval.

Coastal Setback Requirements for Ventura ADUs
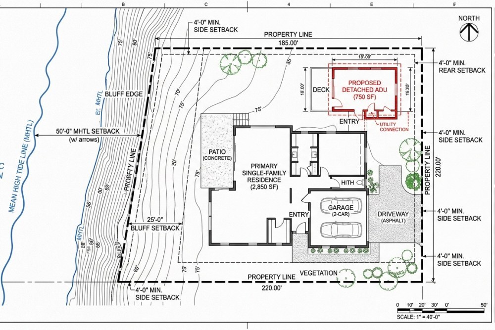
Setback requirements in Ventura's coastal zone operate on two parallel tracks: local zoning setbacks (side, rear, and front yard) and coastal resource setbacks (distance from the mean high tide line, bluff edges, and environmentally sensitive habitat areas). Both must be satisfied for a compliant ADU.
The City of Ventura's ADU ordinance allows detached ADUs to be constructed with 4-foot side and rear setbacks in most single-family zones, consistent with state ADU law. However, the coastal overlay adds a second layer: ADUs must maintain a minimum 25-foot setback from the bluff edge on coastal bluff parcels, and a 50-foot setback from the mean high tide line on beach-fronting lots, unless a site-specific geotechnical report demonstrates that a reduced setback poses no hazard.
In unincorporated Ventura County coastal areas, the setback regime is more conservative. The County's LCP requires 50-foot bluff-edge setbacks for all new structures, including ADUs, with the measurement taken from the most landward point of the bluff. For properties with active erosion or documented bluff retreat rates exceeding 0.5 feet per year, the County may require setbacks of 75 feet or more, effectively rendering ADU development infeasible on smaller coastal lots.
Developers should obtain a coastal bluff delineation survey early in the entitlement process. This survey, prepared by a licensed civil engineer or geologist, establishes the official bluff edge location and provides the baseline for setback calculations. Without this survey, the CCC or local planning staff may apply conservative assumptions that push the ADU footprint into non-viable areas of the parcel.
ESHA and Wetland Buffers
Environmentally Sensitive Habitat Areas (ESHA) present an additional setback challenge in Ventura County's coastal zone. Parcels adjacent to coastal sage scrub, riparian corridors, or wetland areas may be subject to 100-foot ESHA buffers that prohibit new development, including ADUs. The CCC's ESHA policies, refined through decades of case law, prioritize habitat protection over development rights.
In the Ventura Harbor area and along the Santa Clara River estuary, wetland buffers can extend 100 to 300 feet from the wetland boundary, depending on the sensitivity of the habitat and the presence of rare species. A biological assessment, prepared by a qualified biologist, is often required to delineate ESHA boundaries and determine whether an ADU can be sited outside the buffer zone.
For properties constrained by overlapping setbacks—bluff edge, ESHA buffer, and standard zoning setbacks—the buildable envelope may shrink to a small area near the front of the lot. In these cases, attached ADUs or JADU conversions become the only viable path to adding accessory units.
City of Ventura ADU Ordinance: 2023 Updates
The City of Ventura adopted a comprehensive ADU ordinance update in March 2023, aligning local regulations with state law while preserving coastal resource protections. The ordinance allows up to two ADUs per single-family lot: one detached ADU (up to 1,200 square feet) and one JADU (up to 500 square feet) or attached ADU (up to 850 square feet).
Key provisions relevant to coastal zone development include:
- Ministerial approval for compliant ADUs: Projects meeting objective standards receive approval within 60 days without Planning Commission review
- 4-foot side/rear setbacks: Reduced setbacks apply citywide, including in coastal zones, unless coastal resource setbacks impose greater restrictions
- 16-foot height limit for detached ADUs: Measured to the ridgeline, consistent with state law, but subject to coastal view corridor analysis on oceanfront parcels
- No owner-occupancy requirement: Eliminated in 2023, allowing both the primary residence and ADU to be rented simultaneously
- Parking exemptions: No parking required for ADUs within one-half mile of public transit or in historic districts
The ordinance includes a coastal overlay section that cross-references LCP policies. ADUs on oceanfront parcels must undergo a view impact analysis if the property is located within a designated scenic corridor. This analysis, typically prepared by a land use planner, assesses whether the ADU will obstruct public coastal views from nearby streets or public viewing areas. If significant view impacts are identified, the CCC may require design modifications—reduced height, alternative siting, or increased setbacks—as a condition of CDP approval.

Oxnard and Port Hueneme ADU Regulations
Oxnard, Ventura County's largest city, updated its ADU ordinance in 2022 to comply with state mandates. The city allows one detached ADU up to 1,200 square feet and one attached ADU or JADU per single-family parcel. Oxnard's coastal zone, concentrated along the Silver Strand and Hollywood Beach neighborhoods, follows similar CDP requirements as Ventura.
Oxnard's Planning Division processes ADU applications ministerially for projects meeting objective standards, but coastal zone parcels require a separate CDP application submitted concurrently. The city's certified LCP delegates CDP authority to local staff for most residential ADUs, provided the project maintains required coastal setbacks and does not impact public access or coastal views.
One notable Oxnard provision: the city requires landscape plans for all detached ADUs, with an emphasis on drought-tolerant, native plantings in coastal areas. This requirement, while adding a modest design cost, aligns with CCC preferences for habitat-compatible landscaping and can streamline CDP approval.
Port Hueneme, a smaller coastal city with limited single-family residential zones, adopted ADU regulations in 2021. The city allows one ADU per lot, with a maximum size of 850 square feet for detached units. Port Hueneme's coastal zone is narrow, primarily affecting properties along Surfside Drive and the beach neighborhoods south of the harbor. The city requires CCC review for all coastal zone ADUs, as its LCP certification is incomplete in residential areas.
Unincorporated Ventura County Coastal ADU Process
Unincorporated coastal areas—including Faria Beach, Solimar Beach, Rincon, and portions of Ojai Valley within the coastal zone—fall under Ventura County's ADU ordinance and LCP. The County's Resource Management Agency (RMA) processes ADU permits, but most coastal zone projects require direct CCC review due to incomplete LCP certification in these areas.
The County allows one detached ADU up to 1,200 square feet and one JADU up to 500 square feet per parcel. However, coastal zone projects face additional scrutiny:
- Geotechnical reports required for bluff-top parcels: Must demonstrate 75-year stability with a factor of safety of 1.5 or greater
- Biological assessments for ESHA-adjacent parcels: Required within 200 feet of mapped sensitive habitat
- Visual impact analysis for oceanfront properties: Assesses ADU visibility from Highway 1 and public coastal access points
- Water quality plans for properties with septic systems: Ensures ADU wastewater capacity does not exceed system design limits
The County's coastal ADU application requires submission of both the standard ADU permit package (site plan, elevations, floor plans) and a CDP application with supplemental coastal resource studies. Processing timelines typically run 90 to 120 days for projects requiring CCC staff review, with an additional 30 to 60 days if the project is appealed to the full Commission.
The Coastal Development Permit Application Process
For ADU projects that require a CDP, the application process follows a structured sequence. Understanding each phase helps developers manage timelines and avoid common pitfalls that trigger delays or denials.
Pre-Application Consultation
Before submitting a formal CDP application, developers should schedule a pre-application meeting with the local planning department (for certified LCP areas) or CCC staff (for direct CCC jurisdiction). This consultation identifies potential issues—setback conflicts, ESHA concerns, public access impacts—early in the design process, when modifications are least costly.
CCC staff will review preliminary site plans and provide informal feedback on whether the project is likely to qualify for an exemption, expedited review, or full CDP. This meeting is also the appropriate time to discuss whether the ADU triggers other coastal permits, such as a bluff stabilization permit or wetland buffer encroachment permit.
Application Submittal and Completeness Review
A complete CDP application for a Ventura County ADU typically includes:
- Site plan showing ADU location, setbacks from property lines and coastal resources, and existing structures
- Architectural elevations (all four sides) with materials and colors specified
- Grading and drainage plan, particularly for sloped coastal parcels
- Landscape plan with plant species list (native, drought-tolerant species preferred)
- Geotechnical report (if on a bluff or slope greater than 15%)
- Biological assessment (if within 200 feet of ESHA)
- Visual impact analysis (if on an oceanfront or Highway 1-visible parcel)
- Proof of water and sewer capacity (will letter or septic system evaluation)
The local agency or CCC staff conducts a completeness review within 30 days. Incomplete applications are returned with a deficiency list; the clock does not start until a complete application is on file.
Staff Review and Conditions of Approval
Once deemed complete, the CDP application enters substantive review. CCC staff or local planners evaluate the project against LCP policies and Coastal Act standards, focusing on:
- Protection of coastal resources (ESHA, wetlands, bluffs)
- Maintenance of public coastal access and recreation
- Preservation of coastal views and community character
- Hazard avoidance (flooding, erosion, seismic)
- Water quality protection
Staff may request additional information or design modifications during this phase. Common conditions of approval for Ventura ADUs include:
- Deed restrictions prohibiting future bluff armoring: Required for ADUs on eroding bluff parcels
- Landscape maintenance plans: Ensuring native plantings are irrigated and maintained
- Construction-phase erosion control: Silt fencing, sediment basins, and stormwater BMPs
- Lighting restrictions: Downward-facing, shielded fixtures to minimize impacts on nocturnal wildlife
- Color and material specifications: Earth-tone palettes that blend with the coastal environment
For projects processed under a certified LCP, the local agency issues the CDP with conditions. For projects under direct CCC jurisdiction, staff prepares a recommendation for Commission hearing or, for minor projects, issues an administrative CDP.
Appeal Period and Commission Hearing
CDPs issued by local agencies in certified LCP areas are subject to a 10-working-day appeal period. Any person may appeal the local decision to the CCC, alleging that the project is inconsistent with the LCP or Coastal Act. If an appeal is filed and the CCC votes to hear it, the project proceeds to a public hearing before the full 12-member Commission.
Commission hearings are held monthly in various coastal locations. Ventura County projects are typically heard at the Commission's Southern California meetings in Long Beach or San Diego. The hearing process includes staff presentation, applicant testimony, public comment, and Commissioner deliberation. The Commission may uphold the local approval, modify conditions, or deny the CDP.
Appeal risk is highest for ADUs on oceanfront parcels, bluff-top properties, or parcels adjacent to public beach access points. Developers can mitigate appeal risk by engaging with neighbors early, addressing public access concerns proactively, and ensuring the design is visually compatible with the surrounding neighborhood.

JADU Conversions: The Coastal Zone Workaround
For property owners facing complex CDP requirements or constrained buildable envelopes, JADU conversions offer a streamlined alternative. A JADU—up to 500 square feet, carved from existing interior space within the primary residence—typically qualifies for ministerial approval without a CDP under AB 2221's exemption for projects within the existing building footprint.
Ventura's coastal neighborhoods contain numerous single-story ranch homes and two-story beach cottages with underutilized bonus rooms, oversized garages, or enclosed porches that can be converted to JADUs. The conversion process requires:
- Installation of a separate entrance (exterior door)
- Addition of a kitchenette (sink, cooking appliance, counter space—full kitchen not required)
- Bathroom access (may share with the primary unit or include a dedicated bathroom)
- Compliance with building and fire codes (egress windows, smoke detectors, carbon monoxide alarms)
Because the JADU does not expand the building envelope or alter the exterior massing significantly, it avoids triggering coastal view impact concerns or bluff setback issues. The City of Ventura and Ventura County both process JADU applications ministerially, with approval timelines of 30 to 45 days.
From a value-add perspective, JADUs deliver strong returns in Ventura's coastal rental market. A 450-square-foot JADU in the Pierpont neighborhood or Ventura Keys can command $1,800 to $2,400 per month, with conversion costs typically ranging from $40,000 to $75,000 depending on the extent of kitchen and bathroom work required. The ROI on a $60,000 JADU generating $2,000/month in rent exceeds 30% annually—compelling economics for coastal SFR owners seeking incremental income without new construction risk.
Design Standards and Coastal Compatibility
The CCC places significant emphasis on architectural compatibility and visual resource protection. ADUs in Ventura's coastal zone should be designed to complement the existing primary residence and surrounding neighborhood character, using materials, colors, and massing that minimize visual prominence.
Preferred design elements for coastal Ventura ADUs include:
- Low-profile rooflines: Gable or hip roofs with pitches matching the primary residence, avoiding flat or excessively steep roofs that create visual bulk
- Natural materials: Wood siding, fiber cement, stucco in earth tones (beige, gray, sage green) rather than bright or reflective colors
- Minimal glazing on ocean-facing elevations: Reduces nighttime light pollution and bird strike risk; concentrate windows on landward sides
- Integrated landscaping: Native plantings (California sagebrush, coast live oak, toyon) that screen the ADU from public view and provide habitat value
- Recessed entries and covered porches: Break up the building mass and create visual interest without adding height
The CCC has historically denied or required redesign of ADUs that feature:
- Highly contemporary or industrial aesthetics (metal cladding, exposed steel, glass curtain walls) in traditional beach cottage neighborhoods
- Bright or reflective colors (white, yellow, metallic finishes) that increase visibility from public vantage points
- Excessive height or massing that blocks coastal views from neighboring properties or public streets
- Large expanses of hardscape (concrete patios, driveways) that increase runoff and reduce permeable surface area
Developers working with architects unfamiliar with CCC design preferences should review the Commission's ADU design guidelines (published in 2023) and study recently approved coastal ADU projects in Ventura County. The CCC's online permit database includes photos and plans for approved projects, providing a valuable reference library of compliant designs.
Timeline and Cost Considerations for Coastal ADUs
Coastal resource studies and CDP fees add K–K to standard architectural and permit costs.
| Label | Average cost (USD) |
|---|---|
| Geotechnical report | $5,500 |
| Biological assessment | $3,750 |
| Visual impact analysis | $2,250 |
| Bluff delineation survey | $3,000 |
| Architectural design | $11,500 |
| CDP application fees | $3,750 |
| Building/planning permits | $8,500 |
JADU conversions avoid CDP requirements and receive approval 4x faster than CCC-reviewed projects.
| Label | Days to permit issuance |
|---|---|
| JADU conversion (ministerial, no CDP) | 37.50 |
| Detached ADU in certified LCP area | 75.00 |
| Detached ADU requiring CCC review | 120.00 |
| Appealed CDP or Commission hearing | 195.00 |
Entitlement timelines for Ventura County coastal ADUs vary significantly based on jurisdiction and project complexity:
- JADU conversion (ministerial, no CDP): 30–45 days from application to permit issuance
- Detached ADU in certified LCP area (local CDP): 60–90 days, assuming no appeal
- Detached ADU requiring CCC review: 90–150 days, depending on staff workload and completeness of application
- Appealed CDP or Commission hearing: 150–240 days, including hearing scheduling and post-hearing permit finalization
Soft costs associated with coastal ADU entitlement include:
- Geotechnical report: $3,500–$7,500 for bluff-top parcels
- Biological assessment: $2,500–$5,000 for ESHA-adjacent properties
- Visual impact analysis: $1,500–$3,000 for oceanfront parcels
- Coastal bluff delineation survey: $2,000–$4,000
- Architectural design (coastal-compatible): $8,000–$15,000 for a custom 800 sq ft ADU
- CDP application fees: $1,200–$2,500 (local) or $2,500–$5,000 (CCC direct)
- Permit fees (building, planning): $5,000–$12,000 depending on ADU size and valuation
Total soft costs for a coastal ADU requiring full CDP review typically range from $25,000 to $45,000, compared to $8,000 to $15,000 for a ministerial inland ADU. These incremental costs must be factored into pro forma analysis when evaluating coastal ADU feasibility.
Hard construction costs in Ventura County's coastal zone run $350 to $500 per square foot for a detached ADU, reflecting premium finishes, coastal-compatible materials, and the logistical challenges of building in established beach neighborhoods with limited staging areas and strict construction hour restrictions. An 800-square-foot detached ADU typically costs $280,000 to $400,000 all-in (hard costs, soft costs, contingency), with higher figures for oceanfront parcels requiring specialized foundation systems or bluff stabilization.
Value-Add Potential and Rental Market Dynamics
Despite the entitlement complexity and elevated costs, coastal ADUs in Ventura County deliver strong value-add returns in the current rental market. Ventura's coastal neighborhoods—Pierpont, Ventura Keys, Midtown, and the downtown beach area—command premium rents driven by limited housing supply, proximity to the ocean, and strong demand from remote workers and lifestyle renters.
A well-designed 800-square-foot detached ADU in Pierpont or the Keys can achieve $2,800 to $3,500 per month in long-term rental income, with short-term vacation rental potential (where permitted) reaching $200 to $350 per night during peak summer months. For a $350,000 all-in ADU project generating $3,000/month, the annual cash-on-cash return exceeds 10%, with additional property value appreciation as the ADU becomes a permanent income-producing asset.
Oxnard's Silver Strand and Hollywood Beach neighborhoods offer similar rental dynamics, with ADUs commanding $2,400 to $3,000 per month. Unincorporated coastal areas like Faria Beach see slightly lower rents ($2,200 to $2,800) but also lower land costs, creating comparable return profiles.
The elimination of owner-occupancy requirements in Ventura and Oxnard (as of 2023) has unlocked ADU investment potential for non-resident property owners. Coastal SFR investors can now acquire a single-family home, add an ADU, and rent both units to separate tenants—effectively converting a single-income property into a duplex-equivalent cash flow generator without the zoning restrictions or stigma associated with traditional multifamily properties.
2026 Regulatory Outlook and Emerging Trends
The regulatory landscape for coastal ADUs continues to evolve as state legislators, the CCC, and local jurisdictions negotiate the tension between housing production mandates and coastal resource protection. Several trends are shaping the 2026 outlook for Ventura County developers:
Expanded CDP exemptions: The CCC is developing updated guidance on categorical exemptions for small ADUs (under 750 square feet) that meet enhanced setback and design standards. This guidance, expected in mid-2026, may streamline approval for a broader category of coastal ADUs without full CDP review.
Prefabricated ADU acceptance: Ventura County and the City of Ventura are both piloting programs to pre-approve certain prefabricated ADU models that meet coastal design standards. Developers using these pre-approved designs can bypass architectural review, reducing soft costs and timelines. The CCC has indicated support for this approach, provided the prefab models incorporate coastal-compatible materials and massing.
Sea level rise adaptation: The CCC's 2024 sea level rise guidance requires new coastal development to account for 3.5 to 7 feet of sea level rise by 2100. ADUs on low-lying coastal parcels may face elevated foundation requirements or outright prohibition in areas projected to experience frequent tidal flooding. Developers should request sea level rise vulnerability assessments for parcels below 10 feet elevation.
Increased scrutiny of short-term rentals: While not directly an ADU issue, Ventura and Oxnard are both considering stricter regulations on short-term vacation rentals in coastal zones. ADU developers should model rental income based on long-term lease assumptions rather than optimistic STR projections, as regulatory risk in this area is elevated.
Habitat restoration requirements: The CCC is increasingly conditioning ADU approvals on habitat restoration or enhancement measures, particularly for projects adjacent to degraded ESHA. Developers may be required to remove invasive species, plant native vegetation, or install wildlife-friendly fencing as mitigation for ADU impacts—adding $5,000 to $15,000 in project costs.
Actionable Entitlement Strategy for Developers
Successful coastal ADU development in Ventura County requires a disciplined, front-loaded entitlement approach that addresses CCC concerns early and builds in timeline contingency. The following strategy has proven effective for NextGen Coastal clients navigating this process:
Step 1: Jurisdictional determination. Confirm whether the parcel is within the coastal zone, and if so, whether it falls under a certified LCP (local CDP) or direct CCC jurisdiction. Request a zoning verification letter from the local planning department.
Step 2: Constraint mapping. Obtain or prepare a site survey showing bluff edges, ESHA boundaries, wetland buffers, and all applicable setbacks. Overlay these constraints to identify the buildable envelope before engaging an architect.
Step 3: Exemption analysis. Evaluate whether the project qualifies for AB 2221 or SB 897 exemptions. If a JADU conversion or small attached ADU can meet project goals, prioritize that path to avoid CDP requirements.
Step 4: Pre-application consultation. Schedule a meeting with local planning staff or CCC staff to review preliminary concepts and identify potential issues. Use this feedback to refine the design before investing in full architectural plans.
Step 5: Coastal resource studies. Commission geotechnical, biological, and visual impact studies as needed. Budget 60–90 days for consultant work and report preparation.
Step 6: Coastal-compatible design. Work with an architect experienced in CCC projects to develop plans that emphasize low-profile massing, natural materials, and minimal coastal resource impact. Avoid contemporary or industrial aesthetics in traditional beach neighborhoods.
Step 7: Complete application submittal. Submit a complete CDP application with all required studies, plans, and fees. Incomplete applications reset the clock and extend timelines by 30–60 days.
Step 8: Proactive neighbor engagement. For oceanfront or high-visibility projects, meet with adjacent property owners to address concerns before the public comment period. Neighbor opposition is the primary driver of CDP appeals.
Step 9: Condition negotiation. Review draft conditions of approval carefully and negotiate modifications where conditions are overly restrictive or costly. CCC staff are often willing to adjust conditions if the applicant provides technical justification.
Step 10: Appeal risk mitigation. If the project is approved by the local agency, monitor the appeal period closely. If an appeal is filed, engage legal counsel experienced in CCC proceedings to prepare a defense strategy.
This disciplined approach, while time-intensive, significantly reduces the risk of permit denial, costly redesigns, or protracted appeals that can derail project economics.



